About Me
Portfolio
Industrial
Commercial
Institutional
Healthcare
Data Centres
Residential
Sustainability
Integrated Project Delivery
Modular Design
Master & Urban Planning
Landscape
Digital Twin
Studio Projects
Photography
Drone Excursions
Architectural
Landscapes
Blog
Contact
About Me
Portfolio
Industrial
Commercial
Institutional
Healthcare
Data Centres
Residential
Sustainability
Integrated Project Delivery
Modular Design
Master & Urban Planning
Landscape
Digital Twin
Studio Projects
Photography
Drone Excursions
Architectural
Landscapes
Blog
Contact
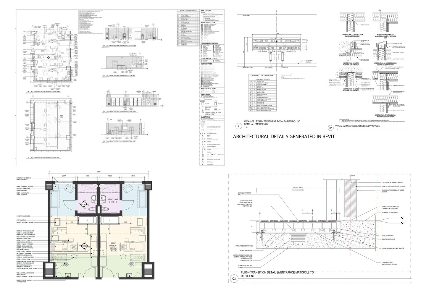
NEW SAINT Paul's hospital, VANCOUVER
Healthcare
SITE CONTEXT AND DEVELOPMENT
DEPARTMENTAL ZONING AND LAYOUT
FACADE CONCEPT
DESIGN DEVELOPMENT
ENHANCED TECHNOLOGY USES
DRAWING SAMPLES