The Global Switch data center in Woodlands, Singapore, was the first-of-a-kind facility in Singapore to achieve more than 80% offsite prefabrication. The project delivery method was a fast-track design and build (D&B) with a budget of SGD 250 million and a contract duration of 16 months. The built-up area of the project was 24990 sqm achieving green building ratings of LEED gold and Green Mark platinum.
PROJECT


Some Interesting Project Facts:
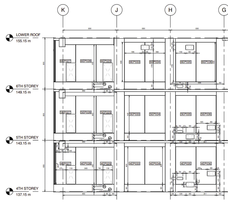
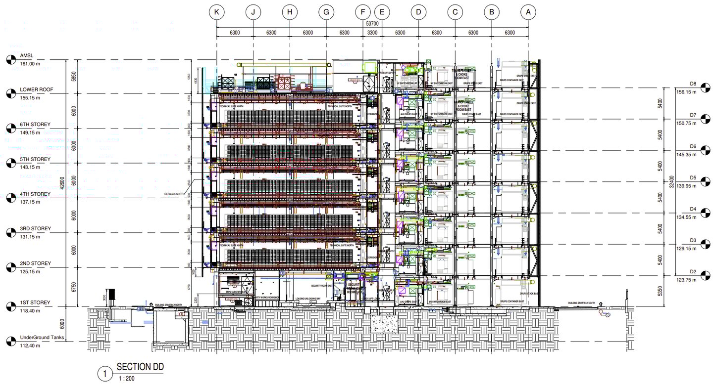
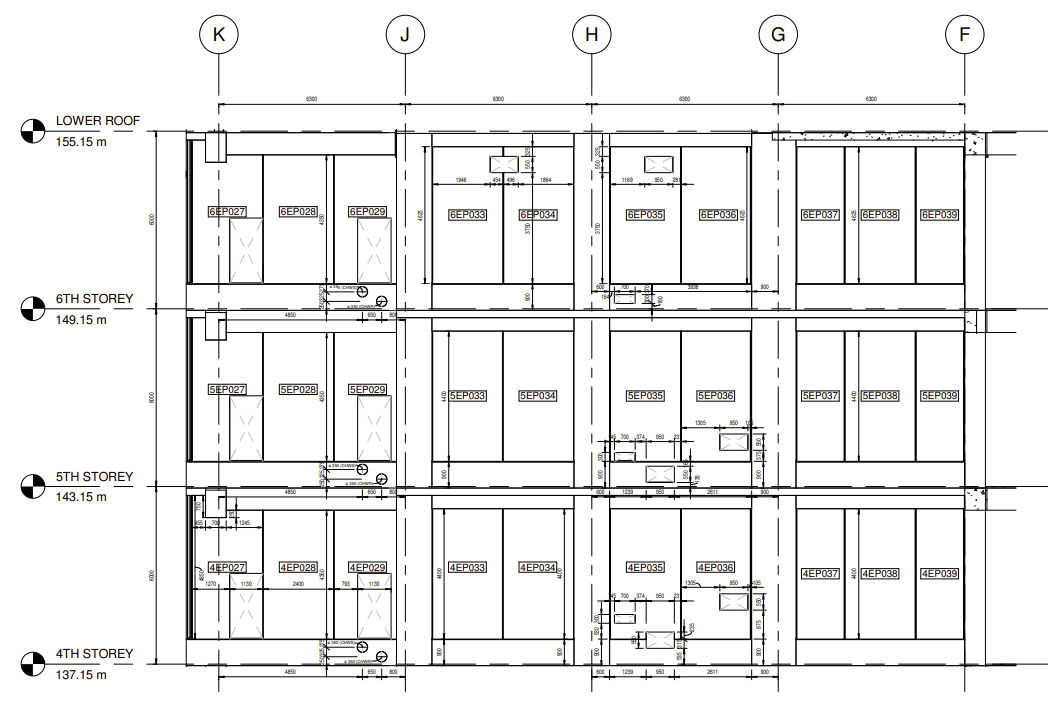
6 STORIES HIGH - 6.5 MT SLAB TO SLAB
FULLY DESIGNED USING BIM
7 LEVELS OF GANTRIES SERVING 6 LEVELS OF BUILDING FLOORS
5 LEVEL OF DATA SUITES
ENHANCED TVRA - 7 STAGES
OVER 20 THOUSAND FM POINTS
16 MONTHS OF PROJECT DURATION


STRATEGIES, STANDARDS, WORKFLOWS AND PROCEDURES






To ensure the project met its prerequisite delivery criteria, I established comprehensive standards, workflows, procedures, and processes. These served as clear deliverable guidelines and execution plans for the team, encompassing every aspect of project delivery. From defining RACI matrices to identifying approvers, every detail was meticulously addressed, ensuring nothing was overlooked.
DESIGN PROGRESSION




design mODEL
LOD 200
Construction mODEL
LOD 500
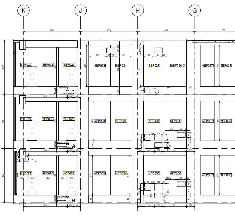
Upon reviewing the conceptual design model and drawings provided by the consultants, it became evident that the design was neither complete nor coordinated. The first step was to thoroughly analyze the model and drawings and devise a strategy for design development and coordination. This process incorporated considerations for prefabrication to ensure alignment with the client’s tight delivery timeline.
The models were developed by the design-builder entirely from scratch, incorporating all necessary drawings and information for analysis, construction, and operations. These models served as a comprehensive resource, supporting design, prefabrication, modularization, and planning for all design, construction and operation related activities.
BIM DRIVEN FACADE DESIGN




PERFORATION SIZE AND COLOR SELECTION
MODULAR DESIGN




STRUCTURAL PREFAB






































